info
information
About
Contact
News
People
Jobs
work
Photography by Donna Dontan.
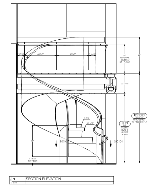
Curved Steel Stair
Feature stair for a Manhattan residence.
Architect: Workshop APD
Contractor: Unlimited Designs