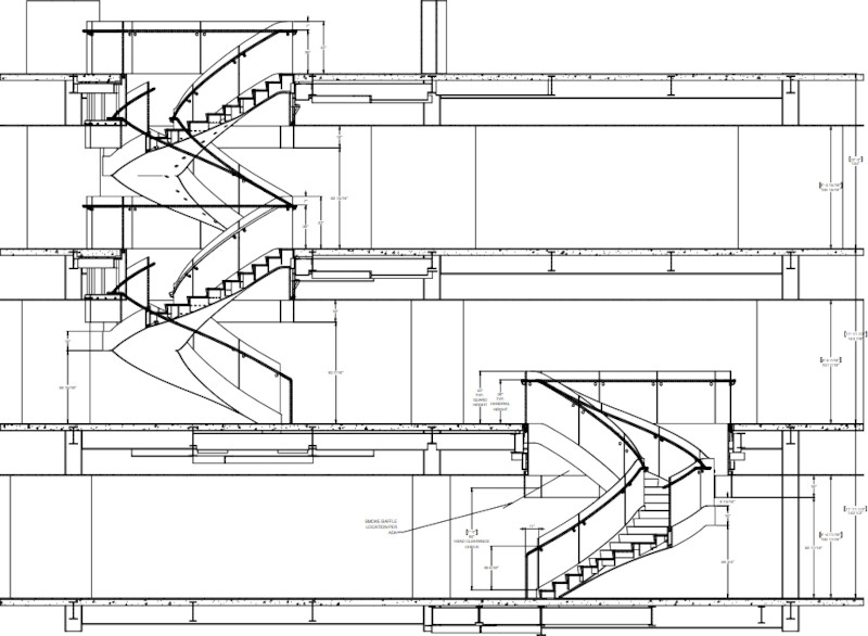
Three story feature stair for an international law firm with a curved glass guardrail.
Architect: TP Bennett Contractor: StructureTone