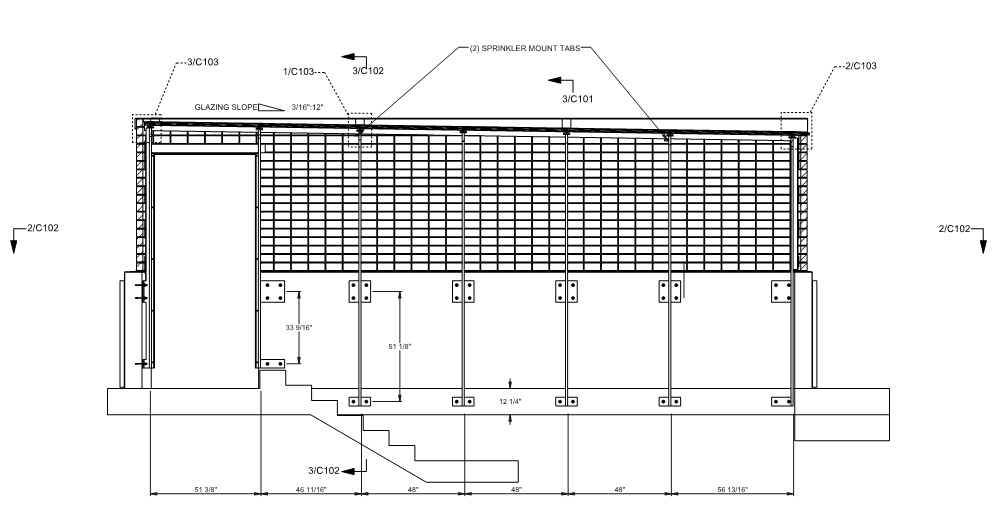
Glass block bulkhead at 1 Hotel Brooklyn Bridge with glass panel roof.
Architect: Marvel Architects Contractor: Hudson Meridian Construction Group